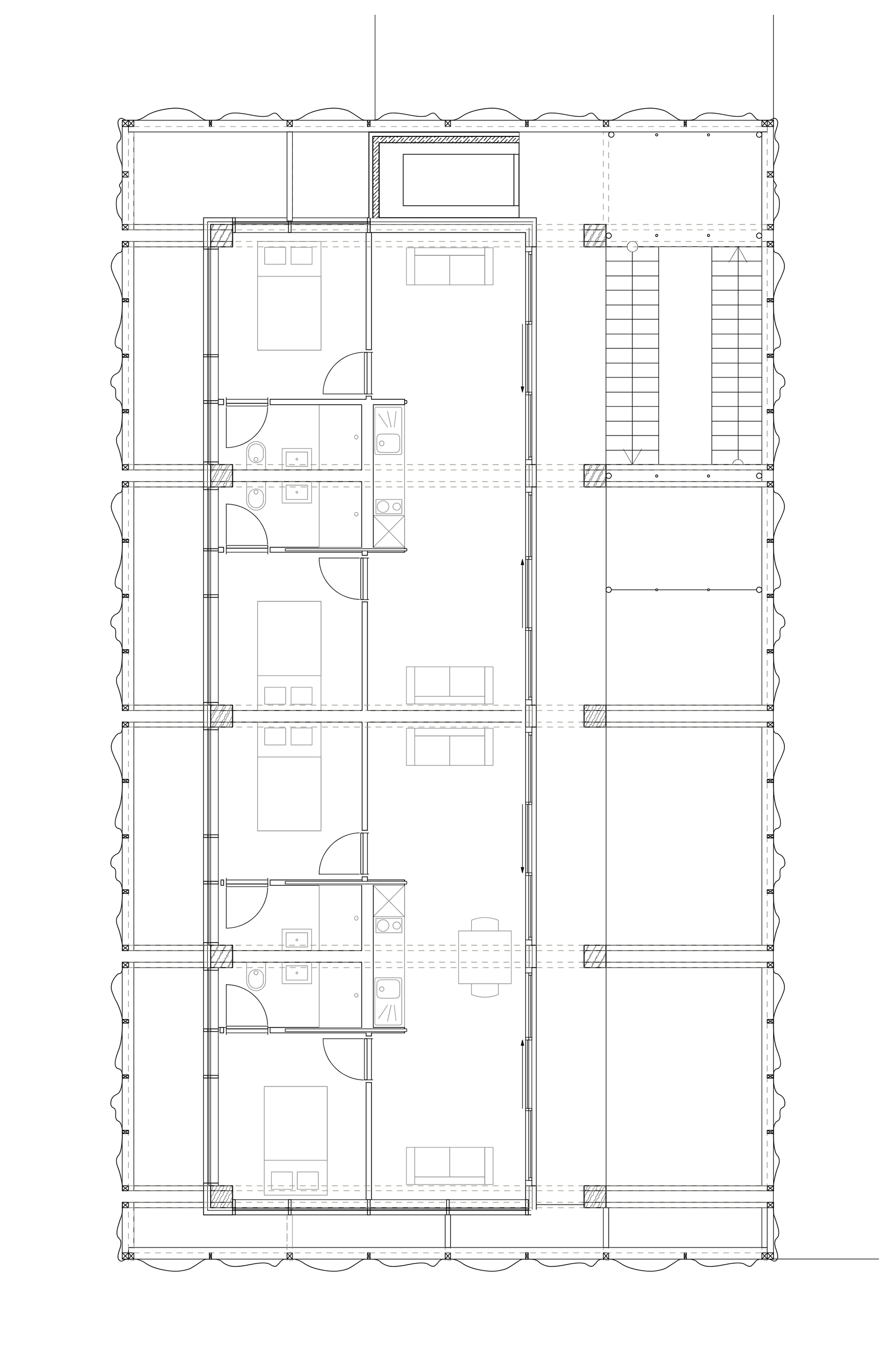
The ‘Fluidurm’ was planned as an extension for the university Paris-Diderot. It includes offices for the university administration, flats for guest professors and other guests of the university. The facade has two layers. The first layer is made of wood frame modules on which polycarbonate plates are attached. It shall create a space in which people can meet and plants can be planted. The second layer is the actual facade which keeps the building warm.

You may also like

Back to Top